YOUR DREAM MOUNTAIN HOME

It all begins with an idea…..

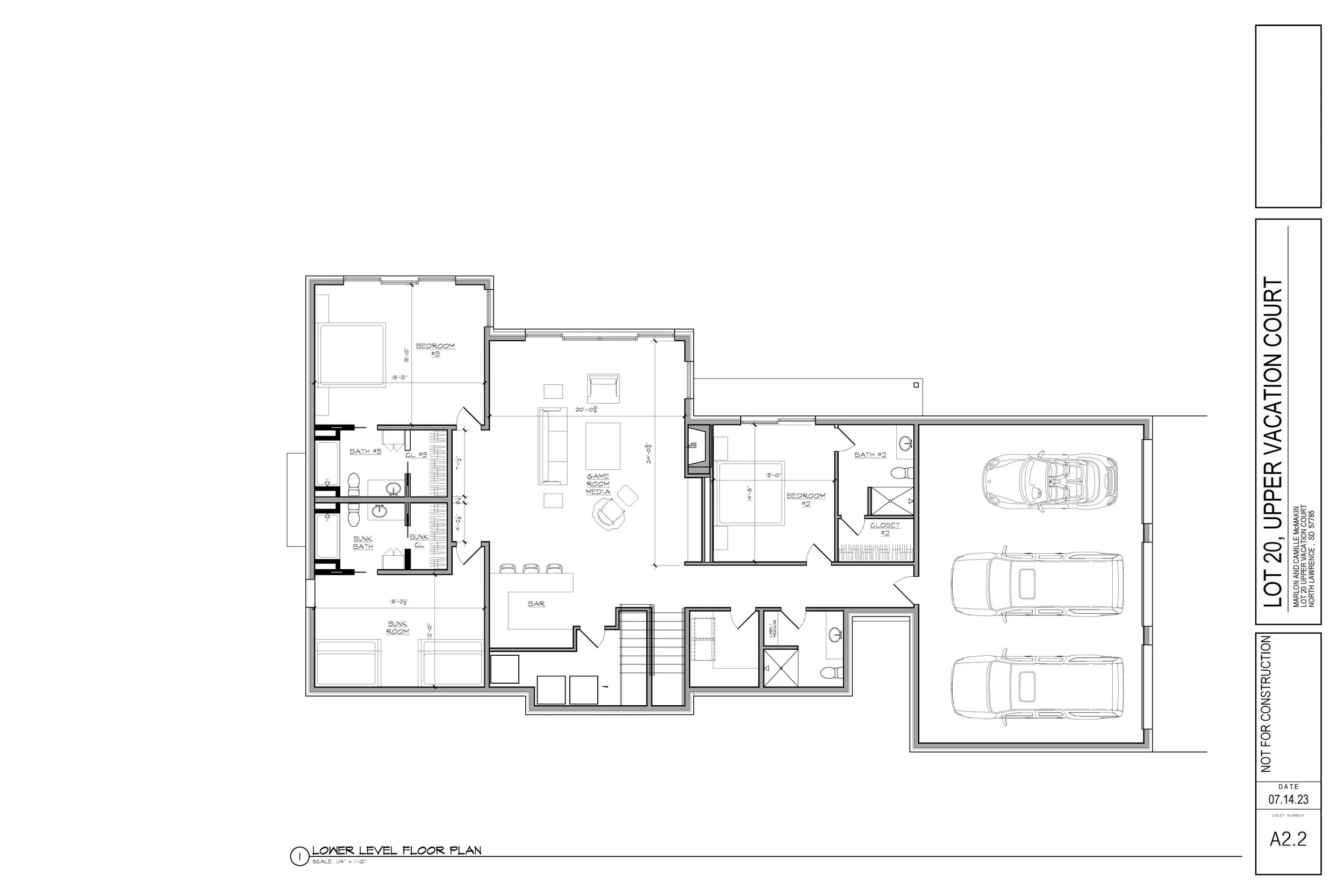
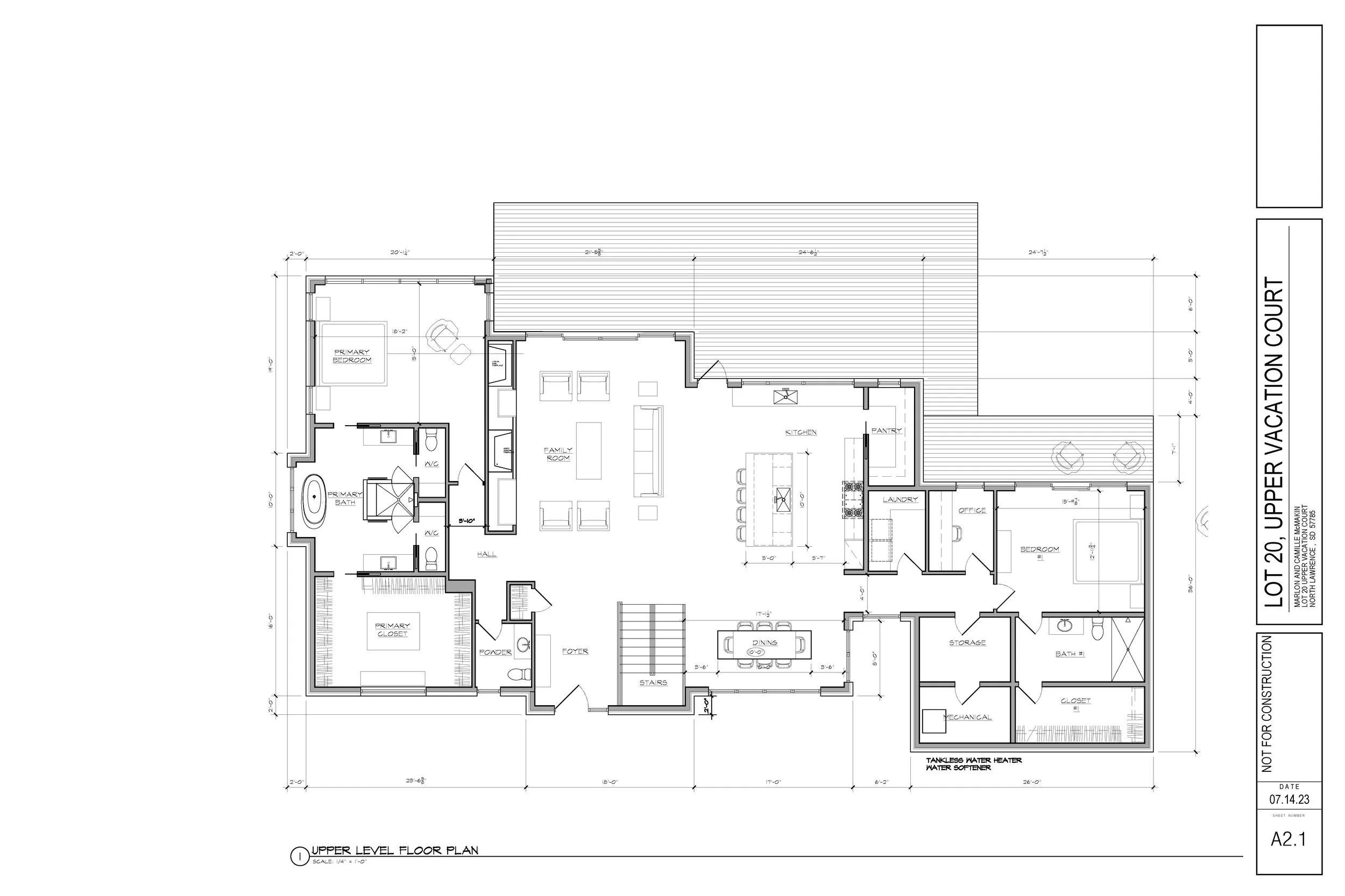
This conceptual two-story home is just one of several homes and cabins that can be built on the 2.2-acre homesite.

This mountain sanctuary is the perfect place to unwind, recharge, and enjoy breathtaking views from multiple decks that bring the outdoors right to your doorstep. Every detail of this mountain home is designed to embrace the natural beauty of the surrounding landscape. With spacious, light-filled interiors and a seamless flow to cozy outdoor living spaces, you’ll relish the fresh air, forested views, and moments of peace and tranquility.

Imagine sipping coffee on the deck in the morning, exploring nearby trails in the afternoon, and gathering with family under the starlit sky in the evening.

If you’re looking for a place to build family traditions and create a lasting legacy in one of South Dakota's most stunning locations, this mountain home offers the perfect blend of comfort, adventure, and natural beauty.